Italiano
399.000 €

Quadrilocale ristrutturato nel 2025

Appartamento in vendita • Sassuolo (Rometta) - Via Puccini
RIF.: GL0566

SE VUOI AVERE LA VIDEO-VISITA DI QUESTO IMMOBILE CONTATTACI TRAMITE WHATSAPP AL NUMERO 335 1748994.

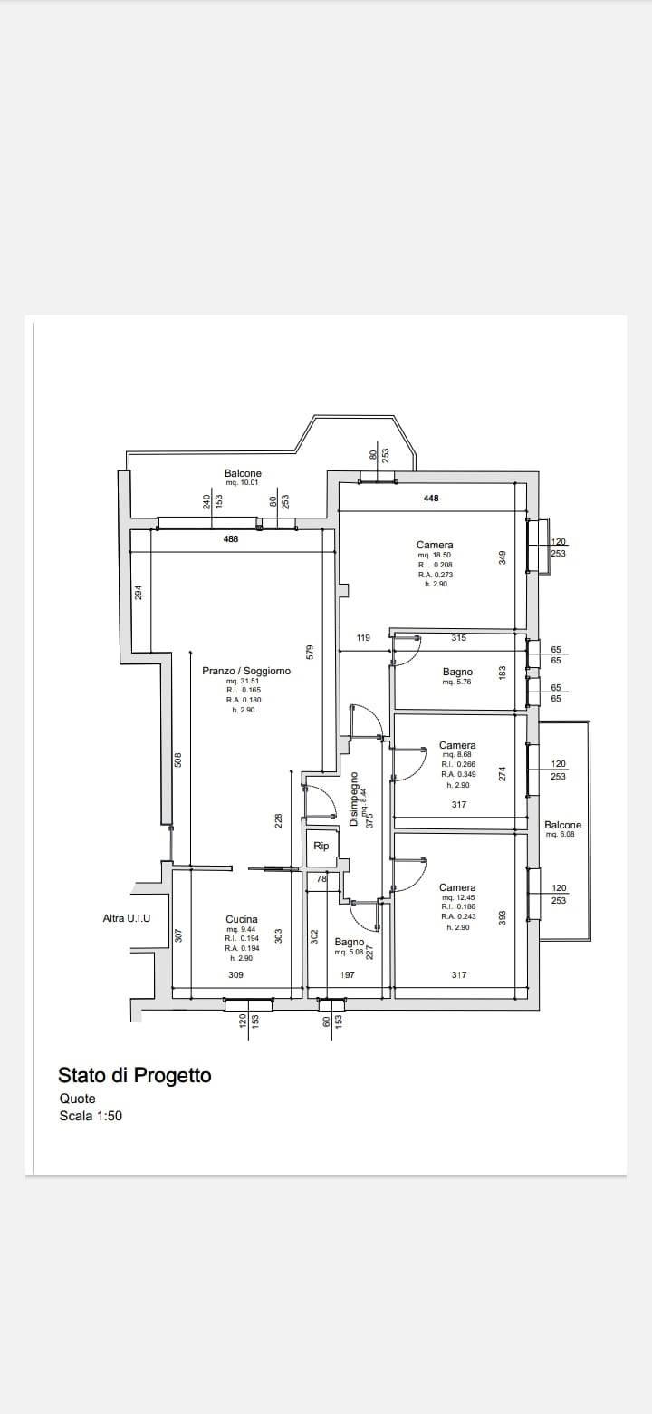
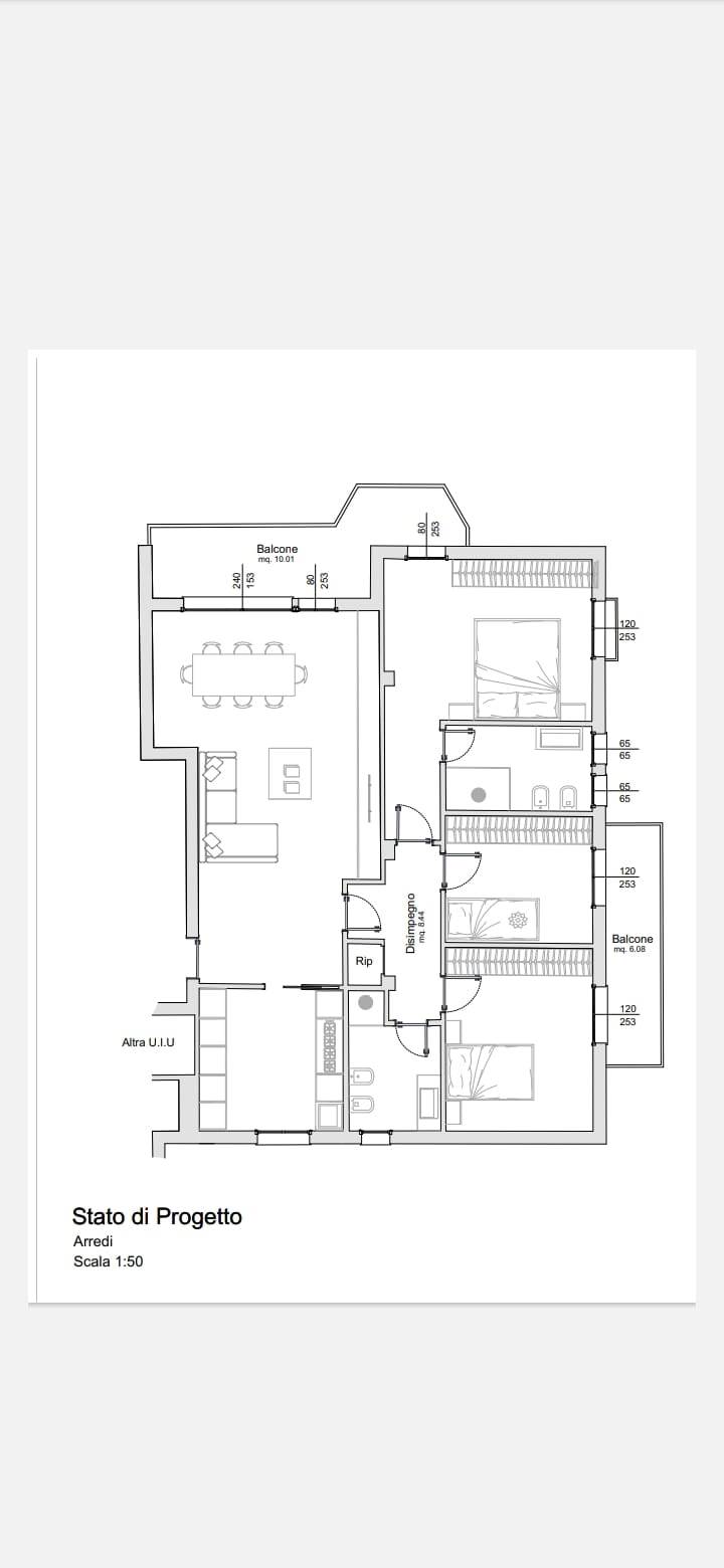
Sassuolo, zona Rometta, in contesto ben curato e residenziale proponiamo appartamento ristrutturato al 2° piano senza ascensore, in palazzina di 3 piani del 1980, composta da 6 unità abitative.

L’immobile è così composto:
2° Piano: Ingresso in ampio soggiorno con ottima divisione spazi tra zona pranzo/cena e zona living con ampie finestre e porta finestra per dare accesso al balcone esposto a sud, cucina abitabile, disimpegno notte, camera da letto matrimoniale, camera singola/studio con accesso da entrambe al balcone esposto a ovest, bagno con doccia e 3 camera da letto matrimoniale con bagno in camera, porta romana e accesso al balcone della sala.

4° Piano: Soffitta

Piano terra: garage singolo di 14 mq e cantina.

L’immobile è stato tutto completamente ristrutturato sia negli impianti che nelle finiture nel 2025, gli infissi sono in PVC con vetro doppio, tapparelle elettrice, zanzariere, porta blindata, video citofono, cappotto interno, aria condizionata a pompa di calore canalizzata, riscaldamento centralizzato con termo valvole e l’esposizione è Nord - Sud - Ovest e la classe energetica è una C.

Le spese condominiali sono comprensive di riscaldamento dell’immobile e dell’utenza idrica fredda.

La zona è residenziale, tranquilla, comoda ai servizi e la palazzina e il contesto sono molto curati e ben vissuti.

Perché acquistare questo immobile?
Ristrutturata nel 2025
Ampi spazi
Zona residenziale tranquilla

Per visionare l’immobile o avere ulteriori informazioni, contattare Lux Immobiliare s.r.l.s. al numero 335 1748994, oppure inoltrare una e-mail all’indirizzo: info@immobiliareluxmo.it
Per altre proposte potrai consultare il nostro sito: www.immobiliareluxmo.it oppure recandoti presso il nostro ufficio Lux Immobiliare in VIA ALBERTO BRASILI 91, MODENA.
Orari:
Dal lunedì al venerdì 9.30 - 13.00 / 15.30 - 19.30 su appuntamento in ufficio
Sabato 9.30 - 12.30 su appuntamento in ufficio
Domenica chiuso
Caratteristiche principali
Codice
GL0566
Città
Sassuolo (Rometta)
Categoria
Appartamento
Prezzo
399.000 €
Spese condominiali
2.000 € / anno
Locali
4
Camere
3
Bagni
2
Mq
135
Box
1
Mq Box
14
Balconi
2
Mq Balcone
19
Piano
2
Classe energetica
C
Stato Immobile
Ristrutturato
Grado
Signorile
Posizione
Periferia
Panorama
Vista Aperta
Orientamento
Nord Ovest Sud
Lati Liberi
3
Giardino
Cortile
Arredi
Non Arredato
Tipo Soggiorno
Soggiorno
Tipo Cucina
Abitabile
Riscaldamento
Centralizzato
Tipo Riscaldam.
Caldaia a Condensazione
Tipo Impianto
Radiatori
Fonte Energetica
Metano
Acqua Calda
Centralizzata
Raffrescamento
Split
Infissi
PVC Doppio Vetro
Serramenti
Nuovo
Persiana
Tapparella PVC
Pavim. Giorno
Gres Porcellanato
Pavim. Notte
Gres Porcellanato
Pavim. Cucina
Gres Porcellanato
Pavim. Bagno
Gres Porcellanato
Accesso Disabili
No
Accesso interno disabili
Non accessibile
Isolamento
Presente
Isolamento termico
Cappotto interno

Accessori: Aria Condizionata, Doppi Vetri, Fibra Ottica, Impianto Satellitare, Porta Blindata, Video Citofono, Zanzariere

Mappa
Via Puccini , Sassuolo (MO)
Richiedi informazioni
Invia
Condividi su
Cookie preference